PHOTOS: Dennis Lo Designs
One of Hong Kong’s most renowned high-end multi-brand fashion stores, Shine, recently opened their second store in Causeway Bay.
Known for importing pioneering brands to trend-conscious locals, the owner of Shine specifically requested Nelson Chow Design & Architecture (NCDA) to design a store that would reinforce the company’s identity as an avant-garde and experimental fashion outlet.
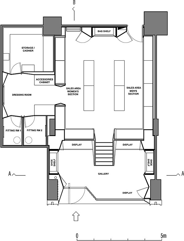
Inspired by the name of the store, a seven metre tall asymmetrical glowing star-shaped structure forms the primary street identity, attracting both pedestrians and motorists. The white shell embodies a black interior wall that further unfolds to create three main rooms: the entrance gallery, the upper level sales area and the dressing room. Equipped with three display platforms and suspended mannequins, the entrance gallery acts as an extension of the window display and forms a stage for the evolving seasonal merchandise displays. The crystalline black wall unfolds to form a suspended staircase leading to the upper level sales area. A row of geometrically arranged fluorescent lights above the stairs emits a cool, futuristic glow in line with the progressive spirit of the clothing.
The upper level sales area showcases the men’s and women’s ready-to-wear collections in black crystalline niches on both sides. Special attention is given to the display of the latest pieces, which are suspended on two central illuminated racks.
Finally, the dressing room (complete with leather padded walls) and cashier entrances behind a continuously folded kaleidoscopic mirror partition, form the most intimate and private area within the shop. Inspired by music videos and computer generated effects, the dressing room enclosure creates a ‘hyper-real state’, where the customer can see multiple reflections of themselves at different angles in the mirror. The backlit stretched ceiling creates a false perception of depth within the two metre headroom, as well as providing abundant light.
The design of the Shine flagship store showcases how the idea of a ‘shining star’ can be translated architecturally into a fashion retail space, creating a visually striking yet highly functional contemporary store.
More information: www.shinehongkong.com/shine.swf, www.ncda.biz

